Charakterystyka:
Grunty tworzą wierzchnią warstwę litosfery, są to materiały powstałe z wietrzenia fizycznego, chemicznego i organicznego oraz rozdrobnienia mechanicznego skał pierwotnych. Głównymi składnikami są: kwarc, skalenie, kalcyt, dolomit, mika, krzemiany.
Grunt składa się z oddzielnych ziaren i cząstek, tworzących układ porowaty. W zależności od warunków powstawania gruntu, pory w gruncie wypełnia woda lub gaz, a najczęściej obie te substancje występują razem. W gruncie wyróżnia się: fazę stałą (ziarna i cząstki), fazę ciekłą (woda) i fazę gazową (powietrze, para wodna i gazy).
Wzajemny układ ziaren i cząstek gruntowych, tworzących szkielet gruntowy, nazywamy strukturą gruntu, która zależy od jakości i wymiarów cząstek oraz od warunków powstawania gruntu. Rozróżnia się trzy typowe struktury gruntów: ziarnistą, komórkową i kłaczkową. Struktura ziarnista jest charakterystyczna dla piasków i żwirów, struktura komórkowa jest charakterystyczna dla gruntów ilastych, odłożonych w wodzie bez uprzedniego skoagulowania się opadających cząstek, struktura kłaczkowa powstaje z cząstek prawie wyłącznie iłowych, opadających w wodzie z rozpuszczonymi solami.
Plastycznością nazywa się zdolność gruntu do poddawania się trwałym (nieodwracalnym) odkształceniom przy stałej objętości, bez pęknięć i kruszenia się
Podstawowe cechy fizyczne gruntu:
Klasyfikacja:
Ziarna i cząstki gruntu dzielone są wg wielkości na grupy zwane frakcjami. Według normy PN-86/B-02480 wyróżniamy pięć następujących frakcji:
Uziarnienie gruntu określa się procentową zawartością poszczególnych frakcji w stosunku do ciężaru całej próbki badanego gruntu.
Podział gruntów i skał ze względu na specyfikę i stopień trudności urabiania w złożu (dla celów robót ziemnych):

Prawo budowlane nie definiuje jednoznacznie pojęcia budowli ziemnej. Przyjmuje się, że za takie budowle uznaje się wytwory ludzkiej działalności, ale takie, które jednocześnie nie są budynkiem, ani obiektem małej architektury i są wykonane z gruntu. Taka budowla musi pełnić swoją rolę, mieć jakąś kubaturę, być widoczna w przestrzeni.
Do budowli ziemnych należą:
- wykopy - wolna przestrzeń, która powstaje po usunięciu gruntu, wykopy mogą być szerokoprzestrzenne (szerokość>1.5m,), wąsko przestrzenne(szerokość <1.5m), jamiste (szerokość i długość <1.5m)
- wały:
- nasypy - ich niweleta znajduje się powyżej poziomu terenu. W celu zminimalizowania ryzyka osunięcia się nasypu należy je wykonywać z gruntów jednorodnych (najlepsze będą kamieniste, żwirowe, piaszczyste i glinowo-piaszczyste). Do nasypów należą:
- fortyfikacje : wały, szańce, kaponiery, fosy
Wykopy ze względu na wymiar dzielimy na:
Sposoby zabezpieczania wykopów:
Wyróżniamy następujące technologie obudowy wykopów głębokich:
Wykopy szerokoprzestrzenne są to wykopy, których wymiar dna w obydwu kierunkach przekracza 1,5 m. Nachylenie skarpy zmienia się w zależności od rodzaju gruntu, który ją tworzy oraz głębokości wykopu. Dopuszcza się wykopy szerokoprzestrzenne o ścianach pionowych lub ze skarpami o nachyleniu większym od bezpiecznego, gdy brzeg skarpy jest nieobciążony, a głębokość wykopu nie przekracza:
W przypadku przekroczenia podanych wyżej głębokości wykopu szerokoprzestrzennego, lecz nie więcej niż do 4 m, należy stosować bezpieczne nachylenie skarp.

Ściany wykopów szerokoprzestrzennych można także zabezpieczać stosując:
Dla wszystkich rodzajów zabezpieczeń ścian głębokich wykopów szerokoprzestrzennych wymagany jest projekt techniczny. Konstrukcje wzmacniające i rozpierające ściany głębokich wykopów muszą być wykonane z materiałów zgodnych z dokumentacją techniczną, a połączenia, głównie spawane, muszą być wykonane przez pracowników z odpowiednimi uprawnieniami.
Grunty, z których należy wykonywać nasypy powinny odznaczać się dużą jednorodnością. Najlepszym materiałem na nasypy są grunty kamieniste, żwirowe, piaszczyste i piaszczysto-gliniaste. Nasypy można wykonywać również z innych gruntów pod warunkiem starannego ich zabezpieczenia przed wpływem wody. Do budowy nasypów można także stosować, przy odpowiedniej technologii, materiały odpadowe z przemysłu ciężkiego takie jak: popioły, żużle czy szlaki wielkopiecowe oraz pyły.
W nasypach nachylenie bezpieczne skarp (stosunek h-wysokość trójkąta nasypu do l-podstawa trójkąta nasypu) wynosi w zależności od gruntu z którego jest nasyp: od 1:1,15 do 1:2.
Nasypy można wykonywać z różnorodnych gruntów pod warunkiem przestrzegania poniższych zasad:
Nasypy można wykonywać kilkoma różnymi sposobami w zależności od dostępnych maszyn budowlanych oraz kosztów technologicznych:
GRUNTY NIEZDATNE DO NASYPÓW:
Są to grunty wysadzinowe (piaski pylaste, żwiry pylaste, rumosz i zwietrzelina) i wątpliwe (pyły, iły, iły pylaste, iły piaszczyste, pyły piaszczyste)
GRUNTY, KTÓRYCH NIE NALEŻY WYKORZYSTYWAĆ PRZY NASYPACH:
Przed rozpoczęciem prac ziemnych, należy wytyczyć miejsce, w którym budynek. Rozróżniamy dwie metody:
W obu metodach należy pamiętać, aby nie trącać kołków i ław i nie zmieniać ich położenia.
Zawsze wyznacza się charakterystyczne punkty - osie lub narożniki zewnętrzne budynku. Zadaniem geodety jest wytyczenie zazwyczaj 2 do 4 punktów (lub więcej w zależności od skomplikowania kształtu fundamentów) zwanymi reperami, do których w każdej chwili będzie można się domierzyć, wyznaczając poziom posadowienia. Mając potrzebne punkty należy dokładnie wyznaczyć położenie wszystkich fundamentów.
Metoda ław drutowanych - to najdokładniejsza metoda, służy do wytyczania krawędzi fundamentów lub osi budynków. Ławy drutowe to linki lub druty rozciągane między deskami przybitymi do wbitych w grunt palików. Deski powinny się znajdować na tym samym poziomie, aby w każdej chwili móc ocenić, czy wykop ma odpowiednią głębokość. Ławy umieszcza się w trakcie odległości od planowanych wykopów, aby nie przeszkadzały podczas dalszych prac przejazdu koparki, składowania materiałów itd.
Metoda kołkowa - paliki, kołki są wbijane w miejscach przecięcia się osi głównych budynków lub w narożnikach zewnętrznych domu. Nie ma znaczenia czy kołki są na tej samej wysokości. Punkty zaznaczone kołkami przesuwa się poza planowany wykop, zapisując tę odległość w dokumentacji, aby można było odtworzyć pierwotne miejsce położenia kołków. Można się poruszać wzdłuż linii będących przedłużeniem połączenia dwóch punktów głównych. Jeśli prace wykonamy ręcznie, kołki można przenieść bliżej, jeżeli mechanicznie - trzeba przenieść je dalej, zostawiając miejsce na wjazd i manewrowanie koparką.

Stopień zagęszczenia oznaczony symbolem ID wyraża naturalny stan gruntu. Wskaźnik zagęszczenia oznaczony symbolem Is informuje, jak został zagęszczony grunt wbudowany w podłoże. Wskaźnik ten oznacza się tylko dla gruntów nasypowych, czyli tworzonych przez człowieka.
W celu sprawdzenia prawidłowości zagęszczenia gruntu stosowane są trzy metody.
Metoda badań laboratoryjnych
W terenie pobiera się próbki gruntu cylindrem o znanej objętości. Ilość pobranych próbek zależna jest od powierzchni prowadzonej budowy. W laboratorium przeprowadza się badanie Proctora i określa gęstość maksymalną i naturalną szkieletu gruntowego pobranych próbek. Z podanego powyżej wzoru określa się wskaźnik zagęszczenia.
Sondowanie gruntu
Wskaźnik zagęszczenia można także określić sondując podłoże. Najbardziej rozpowszechnione jest sondowanie sondą lekką. W zasadzie sonda lekka służy do określenia stopnia zagęszczenia, ale znając wartość stopnia zagęszczenia możemy określić wskaźnik zagęszczenia korzystając z empirycznego wzoru opracowanego przez Stanisława Pisarczyka.
Badanie lekką płytą dynamiczną
Nowoczesna metoda do szybkiego określenia wskaźnika zagęszczenia. Badanie przeprowadza się w terenie. Obciążana dynamicznie płyta przy pomocy wbudowanych czujników pozwala zmierzyć dynamiczny moduł odkształcenia gruntu na podstawie którego można bezpośrednio określić wskaźnik zagęszczenia. Pomiar trwa kilkadziesiąt sekund. Lekką płytą do badań dynamicznych można kontrolować zagęszczenie podłoża do głębokości 0,3 metra. Głębiej położone warstwy bada się wykonując próbne wykopy.
Badania lekką płytą stają się coraz bardziej powszechne.
BHP podczas prowadzenia prac:

ZABRANIA SIĘ !!!
Co należy zrobić w przypadku kiedy po wykonaniu wykopu stwierdzimy, że grunt jest nienośny?
W przypadku stwierdzenia po wykonaniu wykopu, że grunt jest nienośny, należy poinformować o tym fakcie projektanta, który zleca wykonanie ekspertyzy geologicznej. Następnie proponuje metodę wzmocnienia gruntu (wymiana lub wzmocnienie gruntu).
Co należy zrobić w przypadku gdy stwierdzimy, że grunt jest plastyczny?
Podłoże gruntowe powinno być odebrane przez geologa, który w przypadku stwierdzenia obecności gruntu słabonośnego powinien zlecić wymianę gruntu słabonośnego na grunt nośny - jeśli jest to tylko na niewielkim fragmencie powierzchni.
W przypadku gdy grunt słabonośny znajduje się na większej powierzchni i wymaga poważniejszych zmian należy powiadomić o tym projektanta, który powinien dostosować posadowienie fundamentów do istniejących warunków.
Celem odwodnienia wykopów jest zapewnienie warunków odpowiednich do prowadzenia bezpiecznych prac budowlanych, także przy użyciu ciężkiego sprzętu. Konieczność taka zachodzi, gdy poziom wody w gruncie przekracza głębokość na jakiej znajduje się dno wykopu (lub jest do niej zbliżony), lub zachodzi duży dopływ wody opadowej.
W przypadku stwierdzenia zalania wykopu wodą można wykonać czasowe obniżenie poziomu wód gruntowych za pomocą:
Obniżenie poziomu wód gruntowych powinno się wykonywać dokładnie zgodnie z projektem, ponieważ należy liczyć się z możliwością zmniejszenia wytrzymałości gruntu wskutek wymycia jego cząstek.
Projekt powinien zawierać:
Na stałe zapewnienie stałego poziomu wody gruntowej możemy osiągnąć przy pomocy drenażu opaskowego (drenu odwadniającego).
Ze względu na metody poboru wody rozróżnia się odwodnienia:
Aby dokonać wyboru rodzaju systemu odwodnienia wgłębnego należy uwzględnić:
Najpopularniejszym rozwiązaniem odwadniania wgłębnego są igłofiltry. Są to cienkie struktury wpłukiwane w grunt, rozmieszczane w regularnych odstępach, odbierające wodę na pewnej głębokości i przekazujące ją do kolektorów. Schemat zamontowanego rozwiązania tego rodzaju przedstawia grafika poniżej
Warto dodać, że istnienie wody w gruncie jest zupełnie naturalne i zapewnia jego spoistość, dlatego zbytnie odwadnianie gruntu jest niebezpieczne.

Ze względu na rodzaj wykonywanych czynności maszyny do robót ziemnych możemy podzielić na:
Jakie rozróżniamy sposoby zagęszczania i wzmacniania gruntu?
Wyróżniamy następujące sposoby zagęszczania i wzmacniania gruntu:
Płytkie:
Wałowanie - posługujemy się walcami (maszynami o działaniu statycznym) - polega na prasowaniu gruntu, przy czym pod wpływem masy walców następuje obsuwanie się cząstek gruntu w stosunku do płożenia pierwotnego, z jednoczesnym zapełnieniem się porów, co wpływa w rezultacie na zwiększenia stopnia zagęszczenia gruntu.
Ubijanie - stosuje się maszyny o działaniu dynamicznym - polega na nagłych uderzeniach, w wyniku których znajdujące się pod maszyną i w jej najbliższym otoczeniu cząstki gruntu wprowadzone są w ruch.
Wgłębne:
Zagęszczenie wybuchami tylko w gruntach niespoistych
Wibrowanie - polega na wprawieniu w drgania o wysokiej częstotliwości cząstek gruntu.
Wibroflotacja - zagęszczenie przez drgający wibrator; wokół wibratora tworzy się lej na skutek osiadania gruntu, który wypełnia się materiałem dowiezionym. Zagęszczenie od dołu do góry.
Wibrowymiana - wibrator rozpycha i penetruje grunt do projektowanej głębokości. Podciąganiu wibratora towarzyszy wypływ kruszywa w przestrzeń zwolnioną pod ostrzem tworząc kolumny żwirowe.
Poziom wód gruntowych jest bardzo istotny przy budowie budynku, zwłaszcza jego fundamentów. Może utrudnić prace budowlane lub uniemożliwić wykonanie pewnych części, np. piwnic.
Poziom wód gruntowych można określić po badaniach geotechnicznych wykonywanych przed rozpoczęciem budowy.
Przebieg badania
Badanie próbki. Badania obejmują między innymi:
Na podstawie wyników badań określa się poziom wód gruntowych.
Wyróżniamy następujące rodzaje systemów:
1) Drenaż tradycyjny zewnętrzny - system rur naokoło budynku:
2) Drenaż tradycyjny wewnętrzny - rury drenażowe znajdujące się wewnętrzne budynku pod podłogą w otoczce kruszywa oraz geowłókniny.
3) Drenaż francuski - rury zbędne. Element odprowadzający wodę to otoczka z kruszywa osłonięta w geowłókninie. Należy stosować wyłącznie kruszywo mineralne - żwir lub tłuczeń min. 8 mm.
4) Drenaż opaskowy - spadek 0,5 - 3%. Konieczny projekt, aby spadek rur był odpowiedni do kierunku spływu wód gruntowych.
Do drenowania działek i obiektów używamy rur drenarskich. Pierścień układa się z rur o jednakowej średnicy, w linii prostej ze spadkiem wg projektu, bez uskoków, sfałdowań.
Układać je należy poniżej strefy przemarzania (1,10 - 1,20 m). Studzienki w narożnikach, studzienka rewizyjna po przekątnej do studzienki zbiorczej. Przyłączenie drenażu do kanalizacji ogólnospławnej czy deszczowej wymaga zabezpieczenia przed dostaniem się mułu do kanalizacji oraz ścieków do gruntu.
Rury muszą być zabezpieczone otuliną (z włókien kokosowych, jeśli jest to grunt gliniasty, lub tworzywa sztucznego w gruntach żwirowych albo piaskowych). Otuliny chronią rury przed zatykaniem drobinami gruntu rodzimego. Rury bez otuliny trzeba zabezpieczyć materiałem zwanym geowłókniną.
Montaż drenażu
Drenaż układa się w wykopie. Wokół drenów należy ułożyć 20-centymetrową warstwę filtracyjną z drobnego żwiru o granulacji 2-6 mm. Jeśli rury są bez otuliny, to wcześniej na dnie wykopu trzeba ułożyć geowłókninę z pasa o szerokości 2 m, tak by można nim było zabezpieczyć rury także od góry. Rury powinny być umieszczone mniej więcej w połowie wysokości ławy fundamentowej. Spód rury powinien znajdować się minimum 20 cm poniżej górnej krawędzi ławy, ale nie może znaleźć się poniżej jej dolnej krawędzi, bo wtedy woda może przedostawać się pod fundament i go podmywać.
Jeśli drenaż wykonuje się:
Rury trzeba poprowadzić ze spadkiem w kierunku odpływu wynoszącym 0,2-0,3%. Możliwe jest zastosowanie mniejszego spadku, ale wtedy rury trzeba będzie częściej przepłukiwać.
Ciągi drenarskie powinno się układać w linii prostej z rur o jednakowe średnicy (najczęściej 100 mm).
Drenażu zazwyczaj nie stosuje się w gruntach bardzo suchych i przepuszczalnych, w których poziom wód gruntowych znajduje się kilka metrów poniżej poziomu terenu. Bezcelowe jest też wykonywanie drenażu na gruntach podmokłych, jeśli nie ma, dokąd odprowadzać zebranej wody.
Zastosowanie
Szczególnie ważne jest wykonanie drenażu wokół ław fundamentowych, gdy budynek ma stanąć na zboczu, skarpie albo w jej pobliżu, i to niezależnie od rodzaju gruntu - w przeciwnym razie woda spływająca po zboczu mogłaby zatrzymywać się wzdłuż fundamentów budynku i spowodować rozmiękanie gruntu, a wskutek tego - nawet osunięcie się ściany budynku. Drenaż wystarczy zamontować po stronie wzniesienia - zabezpieczy on dom w wystarczającym stopniu przed wodą płynącą zboczem.
Drenaż warto wykonać także wtedy, gdy:

Drenaż francuski - element odwadniający, gdzie woda jest odprowadzana przy użyciu rowu wypełnionego kruszywem, odizolowanego od otaczającego gruntu geowłókniną, przykrytego warstwą przepuszczalnego gruntu. Może być także wykorzystywany jako odwodnienie powierzchniowe.
Zaletą drenażu francuskiego w porównaniu z tradycyjnym drenażem rurowym jest duża powierzchnia styku drenu z otaczającym gruntem, co powoduje, że (na skutek mniejszej prędkości wody przenikającej do drenu) mniej mikrocząstek dostaje się do wnętrza, zmniejszając zamulenie drenu. Ze względu na duże rozmiary, łatwiejsze jest też odwadnianie gruntów słabo przepuszczalnych. Do wad zalicza się dość powolne działanie oraz często niewystarczającą pojemność retencyjną
Drenaż francuski, przewidziany do długotrwałego działania musi być wykonany z odpowiednich materiałów. Użyte powinno być kruszywo naturalne, ze skał niereagujących z wodą, nienasiąkających. Uziarnienie kruszywa powinno wynosić co najmniej 8 mm, bez udziału frakcji 0-8 mm. Najkorzystniejsze jest użycie frakcji 16/63 mm. Gdy trzeba zapewnić szybki przepływ wody, używa się kruszywa o większej granulacji, nawet przekraczającej 63 mm. Geowłóknina powinna być nietkana, igłowana, o przepuszczalności odpowiedniej do danego drenu i odporna na starzenie. Okrycie kruszywa musi być szczelne, co uzyskuje się układając geowłókninę z odpowiednimi zakładami, a na wierzchu zszywając lub spinając.

Drenaż opaskowy - to system rur drenarskich wokół domu, montowanych w celu odbioru i odprowadzania wody w bezpieczne miejsce. Rozwiązanie to stosuje się wtedy, gdy wody gruntowe zbierają się wokół fundamentów domu, a hydroizolacja nie jest wstanie poradzić sobie z tym problemem. W praktyce budynki często narażone są na niszczące działanie wód gruntowych, które przenikając przez nieszczelną izolację, zawilgacają go, a nawet zalewają część znajdującą się pod ziemią.
Elementy drenażu opaskowego:
Drenaż opaskowy fundamentów potrzebny jest przede wszystkim w dwóch przypadkach:
Wodę z drenażu odprowadzamy do kanalizacji deszczowej lub rowów melioracyjnych. Natomiast w przypadku ich braku, stosuje się studnie chłonne albo system przeznaczony do gromadzenia oraz rozsączania wody.

Studnię chłonną można wykonać z kręgów betonowych lub z tworzyw sztucznych. Jej wysokość to ok. 3 m, średnica - ok. 1 m.
Studnia chłonna musi sięgać od powierzchni ziemi do warstwy przepuszczalnej. Odległość między dolną częścią studni a poziomem wód gruntowych nie może być mniejsza niż 1,5 m.
Minimalna odległość studni chłonnej od budynku to 2 m. W celu zwiększenia przeciekania na ściankach dolnego kręgu można nawiercić otwory o średnicy 1 - 2 cm. Jeśli studnia chłonna ma odprowadzać wodę z kilku rur spustowych, należy ją usytuować w miejscu jednakowo odległym od każdej z tych rur.
Można także wybudować kilka mniejszych studzienek przy każdej z rur spustowych.

Studnie wiercone, nazywane są często studniami głębinowymi lub studniami rurowymi. Głębokość studni głębinowych często przekracza 10 m, a wykonuje się je przy pomocy specjalnej wiertnicy.
Studnia głębinowa działa dzięki zastosowaniu dwóch rur: rury osłonowej oraz rury filtracyjnej. Pierwsza dociera w pobliże warstwy wodonośnej, a druga wnika w tę warstwę. Dookoła rury wykonuje się obsypkę ze żwiru, który usprawnia dopływanie wody.
Na górze rura osłonowa zakończona jest obejmą nośną, w której znajdują się przyłącza wodne oraz zawór odcinający. Jeśli studnia głębinowa ma powyżej 8 metrów niemożliwe jest zassanie wody. W takim wypadku na dnie studni umieszcza się specjalną, głębinową pompę tłoczącą.

Jeden poziom igłofiltrów umożliwia obniżenie poziomu wody do 4 m. Koniec igłofiltra powinien być umieszczony ok. 1 - 2 m powyżej oczekiwanej głębokości.
Wprowadza się je poprzez "wpłukiwacze"-narzędzia wiertnicze to strumień wody pod dużym ciśnieniem.
Podstawowymi elementami instalacji są igłofiltry, rurociąg kolektora ssącego oraz agregat pompowy. Igłofiltry zakończone filtrem, umiejscawiane są w gruncie poprzez proces wpłukiwania. Strumień wody pod ciśnieniem umożliwia łatwe wprowadzanie rury wpłukującej w głąb gruntu. Po wprowadzeniu rury do gruntu, wąż wpłukujący zostaje odłączony i do rury wprowadzany jest igłofiltr. Po wprowadzeniu igłofiltra rura wpłukująca wyciągana jest z gruntu. Wpłukany igłofiltr może zostać następnie podłączony do kolektora ssącego.
Pobrana woda jest wydalana przez agregat i kierowana przez rurociąg lub wąż zrzutowy.
W przypadku konieczności znacznego obniżenia poziomu wody, mogą zostać zastosowanie instalacje w układzie wielopiętrowym. W ten sposób poziom wody może zostać obniżony nawet o kilkadziesiąt metrów.

Konsolidacja to sposób wzmocnienia słabego podłoża. Polega na zagęszczeniu gruntu pod wpływem obciążenia nasypem, w wyniku czego zawartość wody w gruncie zmniejsza się wraz z objętością porów. Proces ten jest długotrwały, potrafi zająć nawet kilka lat, i zależy od rodzaju gruntu, jego przepuszczalności i drogi filtracji. Można go przyspieszyć, stosując przeciążenie lub dreny pionowe.
Przeciążenie polega na czasowym obciążeniu nasypu większym ciężarem niż przewidywany, za pomocą zbiorników wody, żelbetu lub siłownikami.
Dreny pionowe skracają czas filtracji, dzięki czemu woda szybciej odpływa z gruntu.
Wibroflotacja - technologia zagęszczenia gruntu, która ma na celu zwiększenie nośności podłoża i zapobieganie jego osiadaniu.
Sprzętem stosowanym do wykonania wibroflotacji jest wibrator wgłębny (wibroflot), który zagłębia się pod własnym ciężarem, jednocześnie wibrując. Proces ten powoduje zmianę układu ziaren gruntu w promieniu do 2,5 m od każdego punktu, o głębokości do 40 m w zależności od ustaleń w dokumentacji projektowej. Powstały w wyniku zagłębiania wibroflota otwór o średnicy od 1,5 m wypełnia się gruntem niespoistym. Stosuje się dwa rodzaje podawania materiału wypełniającego: górne oraz dolne.

Obecnie dąży się do usunięcia sezonowości w wykonywaniu robót ziemnych w celu zaoszczędzenia czasu oraz upłynnieniu prac związanych z robotami ziemnymi również zimą. Decyzja związana z robotami ziemnymi prowadzonymi zimą wiąże się jednak z dużo wyższymi kosztami robót, dlatego decyduje się na to w przypadkach niezbędnych lub tam, gdzie ujemne temperatury są czynnikiem obniżającym koszty budowy.
W przypadku prowadzenia prac w okresie zimowym należy:
Sposoby na zabezpieczenie gruntu przed zamarznięciem:
Rozmrażanie powierzchniowe polega na użyciu:
Wykonywanie i odbiór robót ziemnych powinno być określone w sposób szczegółowy w warunkach technicznych oraz powinno być traktowane jako element specyfikacji technicznych. Poniżej informacje, które powinny być zawarte w specyfikacji technicznej dla wykonywania robót ziemnych:
1.We wstępie dokumentacji projektowej ustala się co jest przedmiotem specyfikacji technicznej oraz określa się zakres robót objętych specyfikacją techniczną.
Najbardziej narażone na działanie wody są elementy znajdujące się najbliżej poziomu gruntu oraz zagłębione w nim, tj. strefa cokołowa i fundamenty budynku. Podmokły teren zagraża budynkowi, osłabia jego konstrukcję, może prowadzić do katastrofy budowlanej. Aby zabezpieczyć teren budowy przed wodami opadowymi należy wykonać system rowków odprowadzających zwykle o trapezowym kształcie, o spadku 2-f-8%. Przy ścianie wykopu na całej jej szerokości wykonuje się niewielki wykop, wypełniony żwirem. Dno takiego wykopu także profiluje się, aby woda zbierała się w studni zbiorczej, usytuowanej w narożniku wykopu. Woda ze studni wypompowywana jest przy pomocy pomp.
Aby uniknąć niebezpieczeństw związanych z działaniem wód opadowych na budynek należy zastosować drenaż, szczególnie w przypadku, gdy budynek ma stanąć na zboczu i spływająca woda mogłaby zatrzymywać się wzdłuż fundamentów budynku. Najpopularniejszym rozwiązaniem jest zastosowanie drenażu opaskowego. Wykonywany jest z perforowanych rur drenarskich. Układa się je w połowie wysokości ław fundamentowych, otacza obsypką filtracyjną i geowłókniną. Woda odprowadzana jest do studni zbiorczej.

Czasowe obniżenie zwierciadła wód gruntowych - jak się wykonuje i po co?
Metody obniżenia zwierciadła wód gruntowych:
Pompowanie z wykopu bez obudowy - polega na zainstalowaniu na dnie wykopu poziomego drenażu opaskowego, który zbiera i odprowadza wodę do studni, skąd następnie jest ona odpompowana w inne miejsce. Taki drenaż głównie, gdy konieczne jest obniżenie wód gruntowych o maksymalnie 2 metry i podłoże jest słabo lub średnio przepuszczalne, na przykład gliniaste lub piaszczyste.
Pompowanie w obudowie ze szczelnych ścianek - ta technika jest analogiczna do powyższej, ale sprawdza się ona przy większym obniżeniu wód gruntowych, o 6-8m.
Wykop w szczelnych ściankach z dodatkiem korka - gdy systemy pomp nie są wystarczająco wydajne, aby nadążyć z przepompowywaniem wody, wtedy na dnie wykopu może pojawić się kurzawka, czyli upłynniony grunt. Wtedy stosuje się technikę wykonania wykopu ze szczelnymi ściankami oraz betonowym korkiem - może on pełnić także rolę przyszłego fundamentu.
Wykorzystanie studni dyspersyjnych - studnie rozmieszczane są na zewnątrz wykopu przy jego obwodzie. Powstają leje dyspersyjne, które zachodzą na siebie wokół wykopu. Umieszczone w nich pompy głębinowe odprowadzają przez rurociągi nadmierną ilość wód podziemnych.
Wykorzystanie igłofiltrów - metoda polega na umieszczeniu w gruncie igłofiltrów. Na ich końcach znajduje się filtr z perforacją, który pobiera wodę z gruntu, następnie igłofiltry podłączane są do kolektorów i agregatów ssących z rurociągiem. Najczęściej stosuje się igłofiltry elastyczne
Wykonanie stawu odwadniającego - jest to sposób na odprowadzenie wody w sposób najbardziej naturalny. Tę metodę stosuje się głównie przy domkach jednorodzinnych, wtedy staw może pełnić także funkcję rekreacyjną. Tym sposobem możemy zmniejszyć poziom wód o 20 cm lub więcej przy korzystnych warunkach, zależy to od przepuszczalności i uwarstwienia gruntu poniżej poziomu posadowienia domu oraz od wielkości stawu.
Czasowe obniżenie zwierciadła wód gruntowych wykonuje się, aby zabezpieczyć budynek przed szkodliwym działaniem wody, m.in.:
Omówić umacnianie skarp wykopów i nasypów stałych i tymczasowych.
Skarpy wykopów i nasypów stałych i tymczasowych zabezpiecza się przed wymywaniem przez wody opadowe i powierzchniowe.
Sposoby umacniania wykopów:
Obsianie trawą na warstwie ziemi humusowej o grubości ok. 15 cm. Tę metodę wybiera się w przypadku skarp małej wysokości i o niewielkim kącie nachylenia, należy dążyć do uzyskania najbardziej jednolitej struktury trawy, ponieważ będzie ona najbardziej odporna na czynniki erozyjne.
Darniowanie na płask, stosuje się darniowanie pełne lub w kratę. Ta metoda polega na pokryciu płaszczyzn skarp płatami darniny o wymiarach zwykle 25 x 25 cm i przybiciu jej cienkimi kołkami drewnianymi do podłoża, zazwyczaj stosuje się dwa kołki na płat darniny.
Darniowanie na zrąb stosowanego przy większym nachyleniu skarpy (1:2) i polega na układaniu płatów darni 25 x 25 cm poziomo jedne na drugich, zamocowaniu kołkami i uklepaniu.
Zadrzewianie, które stosuje się na gruntach skalistych lub stromych skarpach nieutrzymujących darni.
Zabezpieczenie płotkami wiklinowymi stosowane przy kątach nachylenia skarp 1:1 i większych oraz tam, gdzie grunt jest podatny na erozję. Płotki wykonywane są ze świeżych prętów wiklinowych tak, aby dać im możliwość rozrośnięcia się i rozgałęzienia o długości ok. 1,0 m i grubości 4+10 mm. Następnie mocuje się je co 30-50 cm i układa poziomo lub krzyżowo. W przypadku, gdy jest konieczne specjalne zabezpieczenie nasypu, wykonuje się płotki podwójne i wypełnia się przestrzenie między płotkami kamieniami lub żwirem.
Zabezpieczenie brukiem, zwykle stosuje się tam, gdzie nachylenie skarp wynosi 1:1 i więcej oraz gdy skarpy są narażone na ciągły lub stosunkowo częsty przepływ wody. Spoiny między kamieniami uzupełnia się w różny sposób, np. zaprawą cementową, mchem lub okruchami kamienia.
W przypadku skarp urobisk skalnych zabezpieczenie wykonuje się z siatek stalowych.
W przypadku bardzo dużych nachyleń stoków stosuje się mury oporowe.
Larseny, inaczej grodzice, wykorzystywane są m.in. przy budowie dróg, wysypisk śmieci oraz w budownictwie podziemnym. Wykonywane są ze stali, plastiku i innych materiałów w zależności od przeznaczenia. Są wykonywane dla umocnienia tymczasowego skarp, ale istnieją także systemy, służące do zabezpieczenia skarp na stałe.
Ścianki szczelne, wykonywane najczęściej dla umocnień tymczasowych, ale istnieją także systemy, stosowane do zabezpieczeń stałych i stanowią wtedy część konstrukcji fundamentów. Metoda ta polega na zagłębieniu w grunt pionowych elementów dookoła lub w wybranej części wykopu, które połączone są ze sobą za pomocą specjalnych zamków. Ich podstawową funkcją jest podtrzymywanie ścian wykopów lub uskoków terenu. Tworzy się tama i spiętrza sie woda, dzięki czemu ścianki szczelne mogą zostać wykorzystane podczas remontów wałów przeciwpowodziowych. Zabezpieczają przy tym wykopy przed takimi zjawiskami jak sufozja (mechaniczne lub chemiczne wypłukiwanie minerałów lub skał przez wodę opadową lub podziemną) czy kurzawka (ruchome piaski).
Podczas wyboru najbardziej odpowiedniego sposobu na zabezpieczenia skarp należy wziąć pod uwagę przede wszystkich stopień ich nachylenia. Przyjmuje się, że skarpy należy umocnić, jeżeli przy wysokości 2-3 m mają nachylenie większe niż 1:1,5.
Roboty ziemne należy prowadzić zgodnie z poniższymi zasadami:
Omówić zasady wykonywania wykopów w zabudowie śródmiejskiej.
Wykopy w zabudowie śródmiejskiej należy zabezpieczyć za pomocą konstrukcji oporowych.
Wymagają one odpowiedniego zabezpieczenia: wykopu, zabudowy sąsiedniej, instalacji naziemnej i podziemnej.
Powinny być wykonane zgodnie z projektem budowlanym oraz obowiązującymi przepisami, zapewniając: odwodnienie wykopu oraz monitorowanie oddziaływań na stan bezpieczeństwa pobliskich obiektów.
Wyróżnia się siedem rodzajów obudów głębokich wykopów:
Ściana szczelinowa - Formowana w szczelinie gruntu ściana, wykonana z betonu lub żelbetu. Stosowane zarówno podczas wykonywania ścian tuneli, części podziemnej budynków czy ich fundamentów. W budownictwie ogólnym mają one głębokość od 12 do 15 m, natomiast w komunikacyjnym od 22 do 25 m. Grubość ścian wynika z obliczeń statycznych.
Ścianka z grodzic stalowych - Grodzice osadzane w gruncie są za pomocą wibromłotów lub młotów hydraulicznych. Kształt grodzic oraz zamków łączących dobierany jest zależnie od występujących sił działających na nie. Ścianka szczelna może być wykonywany zarówno jako zabezpieczenie tymczasowe jak i stałe. Najczęściej stosowana w przypadku występowania gruntów niespoistych nawodnionych. Problemem przy stosowaniu tego typu zabezpieczenia wykopu jest transport, ze względu na duże rozmiary elementów, hałaśliwy oraz wywołujący duże drgania montaż grodzić.
Palisady - Wykonywane w postaci pali wierconych lub wciętych. Zagłębienia są betonowane, a następnie w każdy, bądź co drugi, pal układane jest zbrojenie. Mogą one mieć do 20 m głębokości. Stosuje się również systemy łączone, wykorzystujące połączenie niezbrojonych ścian szczelinowych z systemem palisadowym. Zaletą systemu palisadowego są niskie koszty brak drgań, duża sztywność oraz możliwość stosowania przy wielu warunkach geotechnicznych. Można stosować przy bezpośrednim sąsiedztwie budynków, natomiast utrudnione jest stosowanie tego systemu w przypadku występowania wysokiego poziomu wód gruntowych.
Obudowa berlińska - Składa się ona z pionowych stalowych słupów oraz opinki, wykonywanej najczęściej z drewna. Stanowi tymczasową ochronę wykopu do czasu wykonania podziemia budynku, jego fundamentów czy tunelu. Wykonywana jest etapami wraz z prowadzeniem budowy. Głębokość wykopu wykonanego za pomocą tej metody wynosi od 10 do 15 m, jednak przy głębokości powyżej 4 m wymaga dodatkowego usztywnienia oraz kotwienia. Jej sztywność jest mniejsza niż sztywność ściany szczelinowej, nie powinna być stosowana w bezpośrednim sąsiedztwie budynków.
Ściana paryska - Odmiana ściany berlińskiej. Wykonywana jest z prefabrykowanych żelbetowych elementów. Słupy wyposażone są w pręty startowe, które po usunięciu fragmentu wykopu i odsłonięciu siatką zbrojeniową betonuje się w fragment obinki.
Ściany z kolumn wykonywane metodą iniekcji strumieniowej - polega na upłynnieniu gruntu strumieniem cieczy o ciśnieniu od 30 do 70 MPa i mieszaniu go z zaczynem cementowym. Żerdź z dyszami osadzana jest w gruncie na żądaną głębokość, następnie wraz z jej unoszeniem skokowym obracany jest grunt i mieszany z zaczynem cementowym. Powstałe w ten sposób kolumny mogą mieć od 60 cm do kilku metrów średnicy. Ściany te osiągają wytrzymałość od kilku do kilkunastu MPa.
Ściana gwoździowana - Grunt zbrojony jest zbrojony kotwami biernymi o długości od 4 do 8 m. Gwoździowanie nie może być stosowane przy gęstej zabudowie ani w pobliżu uzbrojenia podziemnego.
Rodzaje koparek:
Koparka podsiębierna pracuje na górnej krawędzi wykopu, nie zjeżdża na dno wykopu. Stosowana jest przy małych wykopach lub małych działkach oraz gdy nie ma możliwości pracy na dnie wykopu. Pracują również przy wykopach liniowych.
Pojemność łyżki może być 0,2-2,0 m3 do głębokości wybierania 15 m. Praca koparki polega na tym, że wybiera się ziemię w stronę kabiny koparki.
Koparka przedsiębierna pracuje na dnie wykopu i jest przystosowana do pracy przy sporych objętościowo wykopach. Pracując na dnie wykopu, przekazuje wybraną ziemię do pojazdów odwożących urobek, które ustawiają się na dnie lub na poziomie działki.
Pojemność łyżek może wynosić 0,25-1,2 m3 . Praca koparki polega na wybieraniu ziemie łyżką, która działa odwrotnie jak koparka podsiębierna. Wybiera się ziemię przed siebie.
Koparka chwytakowa pracuje zazwyczaj na podmokłych terenach, pogłębiając rowy, kanały lub rzeki. Pracują również przy wykopach studni lub otworach pod filary mostów, czyli ogólnie otwory o małych średnicach. Posiada chwytak, który pozostając otwarty opuszcza się pod własnym ciężarem, zaciska się i zabiera ziemię. Pojemność chwytaka nie przekracza 1m3.
Koparka zgarniakowa pracuje przy urabianiu nadskładu, czyli zgarnia warstwę ziemi lub inne tworzywa jak skały, piach lub żwir, żeby odkryć docelową warstwę. Narzędziem do zbierania materiału jest zgarniak, który zawieszony jest na dwóch linach - podnoszącej i ciągnącej. Najczęściej stosuje się w kopalniach. Mniejsze tego typu koparki stosuję przy pracach budowlanych i drogowych.

Opisać proces technologiczny zdjęcia ziemi roślinnej pod budowę zespołu budynków.
Zanim wykonawcy zaczną robić wykopy pod fundamenty, powinni zdjąć humus, czyli warstwę, najczęściej o grubości około 30 cm, ziemi roślinnej z całego obrysu przyszłego budynku (z metrowym zapasem z każdej strony). Jest ona dosyć miękkim podłożem, w związku z czym istnieje spore prawdopodobieństwo, że nie poradziłaby sobie z utrzymaniem wielotonowego ciężaru budynku, o czym mogłyby świadczyć popękane ściany i posadzki. Humus często powoduje osiadanie budynku, dlatego też niewątpliwie, przed rozpoczęciem budowy domu, warto ściągnąć "żyjącą ziemię". Ponadto, rozwój oraz rozkład organizmów żyjących w humusie niemal na pewno doprowadzi do powstania zapachu stęchlizny, a nawet trwałego zawilgocenia.

Miejsce i sposób składowania humusu również nie mogą być przypadkowe. Najlepiej, by ekipa ułożyła go tam, gdzie będzie później (przy urządzaniu ogrodu) najbardziej potrzebny, jednak nie za blisko krawędzi wykopów (grozi to osunięciem) i nigdy bezpośrednio wokół drzew (ogranicza to dostęp tlenu do korzeni).
Usunięty humus należy uformować w niezbyt duże hałdy, tak aby zapewnić dopływ tlenu i wody do ich dolnych części. Pryzmy ziemi nie powinny być wyższe niż 1,5 m i szersze niż 2 m. Jeśli będą zbyt wysokie, mikroorganizmy się uduszą, w związku z czym gleba straci swoje właściwości. Uzyskana w ten sposób ziemia przyda nam się do wyrównywania miejsc rozjeżdżonych przez ciężki sprzęt oraz do adaptacji ogrodu. Humus jest cenny, a po zakończeniu budowy wręcz pożądany, więc nie byłoby zbyt ekonomiczne płacić za jego wywóz.
Omówić rodzaje badań podłoża gruntowego w zależności od kategorii geotechnicznej, a także dokumentację w zależności od kategorii.
Rodzaje podłoża gruntowego w zależności od kategorii geotechnicznej:
Proste warunki gruntowe:
Występują w przypadku warstw gruntów jednorodnych genetycznie i litologicznie, zalegających poziomo, nieobejmujących mineralnych gruntów słabonośnych, gruntów organicznych i nasypów niekontrolowanych, przy zwierciadle wody poniżej projektowanego poziomu posadowienia oraz braku występowania niekorzystnych zjawisk geologicznych.
Dotyczą pierwszej, drugiej oraz trzeciej kategorii geotechnicznej.
Złożone warunki gruntowe
Występują w przypadku warstw gruntów niejednorodnych, nieciągłych, zmiennych genetycznie i litologicznie, obejmujących mineralne grunty słabonośne, grunty organiczne i nasypy niekontrolowane, przy zwierciadle wód gruntowych w poziomie projektowanego posadowienia i powyżej tego poziomu oraz przy braku występowania niekorzystnych zjawisk geologicznych.
Dotyczą drugiej oraz trzeciej kategorii geotechnicznej.
Skomplikowane warunki gruntowe
Występują w przypadku warstw gruntów objętych występowaniem niekorzystnych zjawisk geologicznych, zwłaszcza zjawisk i form krasowych, osuwiskowych, sufozyjnych, kurzawkowych, glaciotektonicznych, gruntów ekspansywnych i zapadowych, na obszarach szkód górniczych, przy możliwych nieciągłych deformacjach górotworu, w obszarach dolin i delt rzek oraz na obszarach morskich.
Dotyczą trzeciej kategorii geotechnicznej.
Rodzaje niezbędnej dokumentacji w zależności od kategorii geotechnicznej:
Pierwsza kategoria geotechniczna
Wymaga jedynie opinii geotechnicznej i obejmuje jedynie proste warunki gruntowe.
Druga kategoria geotechniczna
W przypadku prostych warunków gruntowych wymaga opinii geotechnicznej, dokumentacji badań podłoża gruntowego, projektu geotechnicznego. Natomiast w przypadku złożonych warunków gruntowych poza wspomnianą dokumentacją niezbędna jest dodatkowo dokumentacja geologiczno-inżynierska.
Trzecia kategoria geotechniczna
Zarówno w przypadku prostych, złożonych i skomplikowanych warunków gruntowych wymaga opinii geotechnicznej, dokumentacji badań podłoża gruntowego, projektu geotechnicznego oraz dokumentacji geologiczno-inżynierskiej.
Czym się różni odwodnienie wykopów od odprowadzania wody z wykopów budowlanych?
Odwodnienie wykopów to ogół działań mających na celu ekstrakcję nadmiaru wody z gruntu w pobliżu wykopu budowlanego. Są to metody odwadniania powierzchniowego jak i wgłębnego.
Odprowadzanie wody z wykopu jest procesem komplementarnym do odwadniania i obejmuje działania mające na celu transport wody uzyskanej w trakcie odwadniania poza wykop. Obejmuje to zarówno wyprowadzanie wody niezwiązanej znajdującej się w wykopie, jak i wody z kolektorów będących ostatnim ogniwem procesu odwadniania wykopu.
Przekrój geotechniczny jest elementem dokumentacji projektu geotechnicznego. Przedstawia w sposób graficzny położenie geotechnicznych warstw gruntu.
Przekrój geotechniczny sporządzany jest na podstawie wyników wierceń badawczych. Badanie gruntu może być uzupełnione wynikami badań laboratoryjnych i sondowań geotechnicznych (np. dynamicznych lub statycznych). Rzędne wysokościowe punktów w przekroju geotechnicznym zazwyczaj są przyjmowane z niwelacji technicznej. Rezultatem badań gruntu jest wydzielenie warstw geotechnicznych zgodnie z klasyfikacją według kryteriów geotechnicznych (rodzaj gruntu i grubość frakcji gruntu).

Na podstawie przekroju geotechnicznego sporządzane są wnioski i zalecenia dla posadowienia obiektów budowlanych. Zgodnie ze stopniem złożenia warunków gruntowych i skomplikowania konstrukcji budynku przyjmowana jest kategoria geotechniczna:
Posadowienie budynku zależy od:
Wymienione czynniki narzucają głębokość posadowienia, dobór typu fundamentów i sposób posadowienia budynku.
Ad. 1) Warunki gruntowe
Budynek powinien znajdować się na odpowiednio nośnym gruncie. Grunt spoisty jest korzystniejszy niż sypki ze względu na mniejsze zjawisko osiadania i wypierania. W przypadku głębiej położonej warstwy nośnej stosowane są fundamenty bezpośrednie (np. pale, studnie). Fundamenty należy zawsze sytuować poniżej poziomu przemarzania gruntu ze względu na ryzyko pojawienia się zjawiska wysadziny, które polega na zwiększaniu objętości cząsteczek wody w gruncie i wypychaniu przez nie fundamentów.
Ad. 2) Warunki wodne
Poziom wód gruntowych determinuje dobór rodzaju fundamentu. W przypadku położenia fundamentu poniżej poziomu wód gruntowych sprawdza się fundament wannowy, który daje możliwość wykonania szczelnej izolacji przeciwwilgociowej. Budynki masywniejsze wymagają stosowania studni fundamentowych - fundamentów pośrednich. Kluczowe znaczenie ma agresywność wody w stosunku do materiałów.
Ad. 3) Posadowienie przylegających budynków
Dąży się do jednakowego poziomu posadowienia sąsiadujących budynków ze względu na aspekty techniczne i użytkowe.
Ad. 4) Gabaryty i ciężar budynku
W budynkach o większych gabarytach zalecane jest stosowanie określonych rodzajów fundamentów (np. fundament skrzyniowy, studniowy), ponieważ tego typu rozwiązania są wydajniejsze i bardziej opłacalne ekonomiczne. W mniej zalecanych typach fundamentowania zachodzi konieczność stosowania dużej liczby elementów (np. w przypadku pal).
Ad. 5) Ukształtowanie terenu
Spadek terenu ma kluczowe znaczenie w sposobie posadowienia zabudowy. Ograniczenia w stosunku do procenta spadku terenu są następujące:

Omówić zabezpieczanie skarp przed erozją - metody naturalne i sztuczne.
Metody naturalne:
Metody sztuczne:

Roboty ziemne na budowie (wykonywanie i zasypywanie wykopów) - ogólne zasady wykonywania.
Wykopy mogą być wykonywane następującymi metodami:
Kształt wykopu w planie dostosowany jest do kształtu fundamentów. Dno wykonuje się trochę większe od zewnętrznego wymiaru fundamentu, umożliwia to dostęp do fundamentu z każdej strony.
Ściany wykopu mogą być: pochyłe (gdy wykop ma zbocza) lub pionowe (należy podeprzeć, aby zapewnić stateczność). W zależności od głębokości wykopu oraz rodzaju gruntu, w którym wykop jest wykonywany dobiera się odpowiedni stopień nachylenia wykopu.
Ściany zabezpiecza się przed osunięciem poprzez wykonanie skarp lub podparcie ścian. W momencie gdy wykonanie skarpy jest niemożliwe ze względu na szczupłość miejsca, gdy grunty są mało spoiste a skarpy musiałyby zajmować wiele miejsca albo gdy poziom wód gruntowych jest wysoki(gdy jest wyższy do poziomu posadowienia) konieczne jest wykonanie podparć dla ścian.
Zasady zasypywania wykopów:
W zależności od wymiarów wykopu dzieli się je na szerokoprzestrzenne (gdy wymiary dna w obu kierunkach są większe niż 1.5m), wąskoprzestrzenne (gdy szerokość dna jest mniejsza niż 1.5m) i jamiste.

Istota metody polega na tym, że nie układa się w miejscu przeznaczenia gotowej mieszanki betonowej, lecz oddzielenie kruszywo grube i oddzielnie zaprawę. Układa się w deskowaniach czysto przemyte kruszywo od razu na całą wysokość betonowanego elementu (np. fundamentu), zagęszczając je za pomocą wibrowania.
Metodę dzieli się na dwie grupy:
Do przygotowanego w ten sposób kruszywa wpuszcza się od dołu za pomocą rur uprzednio wstawionych w deskowanie specjalną zaprawę, która podnosząc się stopniowo wypełnia wszystkie pory w kruszywie.
Ściana oporowa to jeden z typów konstrukcji, które pozwalają skrócić skarpę ziemną lub jej uniknąć. Można wyróżnić wiele jej rodzajów różniących się strukturą, materiałem nośnym, sposobem wykonania itp., przy czym materiałem konstrukcyjnym jest najczęściej beton.
Z punktu widzenia bezpieczeństwa muru najistotniejsze podczas projektowania ściany oporowej są obliczenia statyczno-wytrzymałościowe związane z parciem mas gruntu, odporem i statecznością. Ściana oporowa ma bowiem trwale pełnić swoją najważniejszą funkcję: funkcję nośną, dlatego tak ważne jest dostosowanie rozwiązania do konkretnych, często ekstremalnych, warunków środowiskowych.
Z przedstawionych problemów ścian oporowych najbardziej negatywne skutki ma dopuszczanie do piętrzenia wody za ścianą. W takich sytuacjach dochodzi do pojawienia się na powierzchni licowej odspojeń, przecieków lub wykwitów. Aby zapobiec tym zmianom, należy stosować rozwiązania:
Odwodnienie po stronie zasypki
Ściana oporowa często narusza naturalne warunki wodne. Istnieje więc zagrożenie spiętrzania wody po stronie wyższego poziomu. Wywołuje to niekorzystne ciśnienie hydrostatyczne czy spływowe. Wzrasta wówczas możliwość wnikania wody w pionową, oporującą powierzchnię ściany i zwiększa się ryzyko zmiany warunków stateczności. Nie należy więc retencjonować wody po stronie zasypki, ale ją szybko usunąć. Wykonuje się to przez umieszczenie za ścianą warstwy filtrującej pozwalającej na niezakłócone przemieszczanie wody w dolne partie, skąd jest usuwana. Grubość warstwy filtrującej uzależniona jest od współczynnika filtracji zasypki i wynosi zwykle 0,3-1,0 m. Najbardziej efektywnym rozwiązaniem jest zbieranie wody wzdłuż ściany do rur drenarskich ze studzienkami zbiorczo-kontrolnymi i wyprowadzanie jej do odpowiedniej instalacji odbiorczej. Dreny zakłada się powyżej poziomu fundamentu ze względu na zagrożenie wypłukiwania przez wodę drobnych cząstek gruntu. Dodatkowo w niektórych przypadkach wykonuje się nie tylko odwodnienie wgłębne, lecz także powierzchniowe (np. klasycznym korytkiem odwadniającym). Jeśli grunty rodzime w poziomie posadowienia charakteryzują się odpowiednią przepuszczalnością, nie przerywa się pionowej filtracji do wód podziemnych.
Ochrona materiałowa i izolacja
Izolację układa się bezpośrednio na ścianie wylewanej. Natomiast mur betonowy zwykle się odpowiednio wyprawia. Standardowe izolowanie wykonuje się przez dwu- lub trzykrotne nałożenie na ścianę roztworu asfaltowego. W środowisku silnie agresywnym w celu ochrony powłokowej stosuje się najczęściej rolowe materiały izolacyjne. Osobnym problemem jest zagrożenie utraty ciągłości izolacji wskutek uszkodzeń mechanicznych mogących powstać przy zasypywaniu ściany. Wymagany minimalny spadek warstwy izolacyjnej na fundamencie wynosi 5% i wynika na ogół z przeniesienia właściwie uformowanych powierzchni betonowych. W ścianach wylewanych, przy betonie dobranym do klasy ekspozycji, dopuszcza się tzw. proste zwieńczenie. Wprawdzie nie ma ono większego wpływu na trwałość samej konstrukcji, ale brak kapinosa może przyczyniać się do tworzenia zacieków.
Szczeliny dylatacyjne konstrukcji
Ściany oporowe eksploatowane w otwartym terenie narażone są na dobowe bądź sezonowe zmiany temperatury. Powstające siły tarcia w gruncie generują w konstrukcji naprężenia ściskające lub rozciągające. Oznacza to konieczność kontrolowania procesu zarysowania nie tylko w młodym betonie, lecz także podczas eksploatacji.
W celu zapewnienia "dojrzałej" już ścianie pewnej swobody przemieszczeń, należy wykonać konstrukcyjny podział na krótsze segmenty. Przerwa pionowa o szerokości 1-2 cm powinna przechodzić od zwieńczenia do spodu fundamentu ściany. Bez wnikliwej analizy konstrukcji poddanej oddziaływaniu skurczu betonu i różnicy temperatur można przyjmować 5 m jako wystarczającą odległość pomiędzy szczelinami w ścianach betonowych.
Natomiast w ścianach żelbetowych, z uwagi na stosowany minimalny przekrój zbrojenia, rozstaw stałych przerw dylatacyjnych można zwiększyć do 20 m. Podane odległości dotyczą odcinków ścian oporowych o końcach mających swobodę przemieszczeń poziomych. Istnieją jednak obiekty z utrudnionymi przemieszczeniami, np. w ścianach załamanych w planie. Wówczas respektuje się zasadę ograniczania odległości od załamania do szczeliny. Wartością dopuszczalną jest wtedy 10 m. Spełnienie tych warunków pozwala na optymalne kontrolowanie procesu termiczno-skurczowego. Ze względu na trwałość samej konstrukcji istotne jest nie samo zarysowanie, ale nieprzekraczanie przez nie granicznej szerokości 0,1
Szczeliny dylatacyjne standardowo zabezpiecza się przed możliwością przesączania wody. Najwyższy stopień szczelności w ścianach wylewanych uzyskuje się dzięki zastosowaniu specjalnych listew zamykających. Podobne zasady dylatowania stosuje się w betonowych konstrukcjach murowych. Mur niezbrojony z elementów z betonu kruszywowego bez względu na stopień nasłonecznienia należy dzielić co 6 m.

Przy wznoszeniu muru oporowego z betonu o wysokość powyżej 0,5 m, konieczne będzie nie tylko wykonanie zbrojenia konstrukcji, ale również posadowienia jej na fundamencie. Zbrojenie obu tych elementów wykonuje się jak każde żelbetowe konstrukcje. W związku z tym, że nacisk gruntu przebiega w kierunku poziomym, ścianę zbroi się pionowo, przeciwdziałając siłom parcia. Zbrojenie poziome fundamentów powinno być ułożone równo, w takich samych odstępach. Rozkład zbrojenia, gęstość ułożenia, jak i rodzaj prętów układa się na podstawie wyliczeń architekta projektującego daną konstrukcję.

Ścianka szczelinowa - to ściana z betonu lub żelbetu, formowana w szczelinie wykonanej w gruncie. Beton jest układany przez rurę wlewową, pod osłoną cieczy rozpierającej ściany szczelinowej - zawiesina iłowa (bentonitowa).
Ściany szczelinowe są wykorzystywane jako obudowa głębokich wykopów, a także jako ściany konstrukcji podziemnych np. garaży oraz fundamenty budynku.
Ściany szczelinowe mogą być wykonywane w bezpośrednim sąsiedztwie istniejącej zabudowy - min. odległość ok. 30 cm.
Fazy:
Po wykonaniu ściany wykonuje się wieniec łączący wszystkie sekcje, który zapewnia współpracę między nimi i zapobiega klawiszowaniu ściany.
Zastosowanie:
Zalety:
Rzadko występujące ograniczenia stosowania ścian szczelinowych wynikają głównie z zastosowania zawiesiny bentonitowej.
Można do nich zaliczyć:

Ścianka szczelna - to lekka konstrukcja oporowa złożona z podłużnych elementów drewnianych, stalowych, żelbetowych lub PVC, zagłębianych w grunt, ściśle jeden obok drugiego, tak by całość stanowiła szczelną.

Fazy wykonania:
Kotwy gruntowe - są elementami przenoszącymi siły rozciągające na nośną warstwę gruntu. Kotew gruntowa składa się z głowicy, swobodnego odcinka cięgna oraz buławy. Buława jest częścią kotwy zlokalizowaną w gruncie nośnym i zespoloną z nim stwardniałą zawiesiną cementową.
Kotwy znajdują zastosowanie przy:
Podział:
Metody wykonywania:
Kotwy gruntowe wiercone są z zastosowaniem medium umożliwiającego odprowadzenie poza otwór wiertniczy powstałego podczas procesu wiercenia urobku. Rolę taką może spełniać między innymi podawane pod dużym ciśnieniem powietrze, zaczyn cementowy lub woda.
W zależności od poziomu wody gruntowej oraz rodzaju zalegającego w podłożu gruntu, kotwy mogą być wykonywane z zastosowaniem rur obsadowych lub bez ich użycia. Wiercenie bez rur osłonowych pomimo iż znacznie przyspiesza proces wiercenia, możliwe jest jedynie w jednorodnych i bardzo spoistych gruntach, które umożliwiają stabilne utrzymywanie otworu na całej długości odwiertu po usunięciu świdra wiertniczego. W większości przypadków dla umożliwienia wprowadzenia kotwy do otworu stosuje się podczas wiercenia obsadowe rury pomocnicze stabilizujące otwór w czasie iniekcji wstępnej oraz w czasie montażu kotwy.
Prawidłowa kolejność montażu kotwi powinna obejmować wykonanie otworu, wypełnienie otworu zaczynem cementowym, wprowadzenie kotwi do otworu i iniekcję doprężającą na długości buławy.
Minimalny okres "dojrzewania" kotwy powinien wynosić 7 - 14 dni, w zależności od materiału użytego dla iniekcji. Po tym okresie przeprowadza się badania odbiorcze (najczęściej przy obciążeniu równym 1,25 siły obliczeniowej) i blokuje się kotew przy naciągu ok. 0,8 - 0,9 siły obliczeniowej.
Zalety kotew gruntowych:

Ściany gabionowe - są prostopadłościennymi koszami, wykonanymi z podwójnie skręconej siatki stalowej galwanizowanej cynkiem lub cynkiem i aluminium .Gabiony dostarcza się na budowę całkowicie gotowe i złożone na płask na czas transportu. W miejscu wbudowania wypełnia się je otoczakami, kamieniami łamanymi lub innym kruszywem. Siatki produkuje się i formuje w elementy skrzyń lub walców metodami przemysłowymi. Kosze, walce i materace różnią się między sobą kształtem koszy (wysokością, długością i szerokością).

Zastosowanie: do umocnień ziemnych (geotechnicznych) w budownictwie lądowym i wodnym (morskim i śródlądowym) jako:
Zalety:
Bardzo istotną cechą siatki, z której wykonuje się gabiony jest jej podwójny splot. Ten właśnie szczegół powoduje, że przecięcie pojedynczych drutów, z których spleciona jest siatka i wykonany z niej kosz nie stwarza żadnego niebezpieczeństwa rozprzestrzeniania się uszkodzenia.
Kosze gabionowe stanowią podstawowy element większości konstrukcji budowanych z gabionów, a zwłaszcza wszelkiego typu murów oporowych. Posiadają formę prostopadłościanów w różnych rozmiarach.
Podstawowy typ siatki użytej do ich produkcji ma oczka o wymiarach 80 x 100 mm (kamień użyty do wypełnienia koszy powinien mieć wymiary 80 - 200 mm). Kosze gabionowe mają zwykle pośrednie ściany działowe (co 1,0 m), dodatkowo wzmacniające konstrukcję i ułatwiające montaż. Częściowe wypełnienie koszy gabionowych gruntem urodzajnym stwarza możliwość nasadzeń roślinności i szybkiego "zazielenienia" konstrukcji. Przy dłuższym okresie użytkowania budowli proces ten może zachodzić samoczynnie.
Omówić jakie są podstawowe formy utraty stateczności muru oporowego.
Utrata stateczności następuje, gdy wzdłuż dowolnej ciągłej powierzchni w zboczu lub skarpie siły ścinające przekroczą wytrzymałość gruntu na ścinanie. Rozpatrywane są 2 stany graniczne nośności: utrata stateczności na przesunięcie oraz utrata stateczności na obrót.
Należy je obliczyć zgodnie z normą PN-EN 1997-1 (2008).
Wpływ na utratę stateczności muru oporowego ma wartość parcia gruntu oraz kierunki sił wypadkowych parcia gruntu.
Stateczność na przesunięcie jest zapewniona, jeżeli:
Hd =<Rds+Rbd, gdzie
Stateczność na obrót jest zapewniona, jeżeli:
Mod =<Mud, gdzie

Keson jest to sztywna konstrukcja w formie dużej skrzyni, posiadająca szczelne ściany i otwarte dno umożliwiające jego zagłębianie do projektowanego poziomu. Keson znajduje zastosowanie, gdy zachodzi konieczność wykonania fundamentów w gruntach nawodnionych albo wręcz w wodzie. Zespół urządzeń potrzebnych do prawidłowego działania kesonu składa się z następujących elementów:

Wykonywanie fundamentu za pomocą kesonu polega na wykorzystaniu sprężonego powietrza do usunięcia wody ze skrzyni roboczej, poprzez zwiększanie ciśnienia do wysokości ciśnienia hydrostatycznego (lub nieznacznie większego). Pozwala to na wykonywanie wewnątrz skrzyni robót ziemnych polegających na wydobywaniu gruntu, usuwaniu przeszkód, zapełnianiu komory itd. Ciśnienie w komorze roboczej zwiększa się w miarę zwiększania się głębokości opuszczania kesonu, zgodnie z zasadą, że każde 10 m słupa wody daje dodatkowe ciśnienie równe 1 atm (ponad normalne atmosferyczne). Głębokość opuszczania kesonów ograniczona jest wytrzymałością ludzkiego organizmu i nie może przekroczyć 3,5 - 4,0 atm, co odpowiada zagłębieniu 35 - 40 metrów. Wymiary komory roboczej w rzucie odpowiadają wymiarom potrzebnej podstawy fundamentu, a jej wysokość wynosi w granicach 2,0 - 2,5 m.
Wyróżniamy dwa rodzaje kesonów:
|
KESON OTWARTY |
KESON PNEUMATYCZNY |
|
|
ZALETY |
- brak ograniczenia głębokości - niski koszt budowy |
- brak wody na dnie, co ułatwia prowadzenie robót budowlanych - fundament wylany w suchych warunkach jest lepszej jakości |
|
WADY |
- konieczność wypompowywania wody z dna |
- głębokość ograniczona ciśnieniem wewnątrz - wysokie koszty (jeśli jest to możliwe, kesony zastępuje się fundamentami na palach) |
Ze względu na materiał, z którego są wykonane wyróżnić można keson żelbetowy i keson stalowy. Spotykane były również kesony drewniane, kamienne i betonowe.
Usuwanie ziemi z komory pozwala na dokładne zbadanie gruntu pod względem jego właściwości, co umożliwia uzupełnienie wyników badań uzyskanych za pomocą wierceń, a tym samym stanowi potwierdzenie, iż parametry gruntów stanowiących docelowy poziom posadowienia zostały przyjęte poprawnie. W przypadku powstania rozbieżności w stosunku do założeń projektowych można podjąć środki zaradcze, takie jak zejście z poziomem posadowienia kesonu głębiej, zwiększenie podstawy fundamentu, wzmocnienia gruntów w podłożu lub posadowienie kesonu na palach.
Proces opuszczania kesonu wykonuje się w kilku etapach:
Etap 1 - W przypadku, gdy grunt jest suchy, na powierzchni terenu lub we wstępnym wykopie, buduje się skrzynie kesonu, czyli tzw. keson właściwy. W przypadku, gdy grunt pokryty jest wodą powierzchniową budowę kesonu wykonanie się na przygotowanym rusztowaniu lub na sztucznie nasypanej wyspie.
Etap 2 - Po wykonaniu skrzyni, rozpoczyna się etap wybierania gruntu spod noża i ze środka skrzyni. W tym samym czasie nad skrzynią rozpoczyna się budowa muru fundamentowego. W wyniku zwiększania ciężaru skrzyni roboczej i wybierania gruntu z jej wnętrza, następuje opuszczanie kesonu. Wybieranie gruntu z kesonu może odbywać się mechanicznie, hydraulicznie lub ręcznie. W miarę zwiększania zagłębienia kesonu następuje zwiększanie ciśnienia w jego komorze.
Etap 3 - Po uzyskaniu docelowej głębokości, na której warunki gruntowe zapewnią bezpieczne posadowienie obiektu, przystępuje się do wypełniania komory roboczej betonem. W tym celu w pierwszej kolejności układa się warstwę żwiru lub tłucznia o grubości około 15 - 30 cm i odpowiednio ją zagęszcza. Kolejno warstwami wypełniania się keson betonem, przy czym dopuszczalne jest użycie kamienia grubego w ilości nieprzekraczającej 30% objętości betonu. Ze względu na dużą pracochłonność, znaczne koszty wykonania i niebezpieczeństwo związane z pracą ludzi w warunkach zwiększonego ciśnienia, kesony obecnie nie są stosowane.
Prowadzenie robót kesonowych bez lekarzy i personelu pomocniczego jest zabronione. Lekarz organizuje i sprawuje całokształt opieki lekarskiej, a przede wszystkim prowadzi akcję zapobiegania i leczenia chorób kesonowych. Opieka lekarski powinna być stała i zorganizowana w sposób zapewniający możność niezwłocznego wezwania lekarza kesonowego w każdym czasie. Do pracy w kesonach przy nadciśnieniu 2 atm mogą być dopuszczone osoby w wieku od 20 - 45 lat, a przy nadciśnieniu wyższym - od 20 - 40 lat. Przepis ten nie dotyczy osób należących do nadzoru technicznego. Kandydaci do prac kesonowych powinni być poddani badaniu rentgenologicznemu płuc i serca, laryngologicznemu oraz w miarę potrzeby innemu specjalistycznemu. U każdego kandydata do prac kesonowych powinna być przeprowadzona próba na opad krwinek (odczyn Biernackiego).
Pracownicy kesonowi oraz personel nadzorujący roboty kesonowe otrzymują po przyjęciu do pracy książkę kesonową, zawierającą przepisy sanitarno-higieniczne oraz z zakresu higieny pracy. Do książki tej lekarz wpisuje wyniki badania wstępnego i badań okresowych, przebieg choroby kesonowej, przypadki innych zachorowań oraz wypadki przy pracy. Inne osoby wchodzące do kesonów obowiązane są - przed wejściem do kesonu - poddać się badaniom lekarskim. Pracowników należy zaopatrzyć w odzież specjalną i buty skórzane nieprzemakalne oraz inną potrzebną odzież i sprzęt ochronny. Keson powinien posiadać osobną śluzę materiałową i osobową.
Osoby rozpoczynające pracę w kesonach po raz pierwszy powinny w ciągu pierwszego tygodnia pracować w nadciśnieniu 1,2 atm.
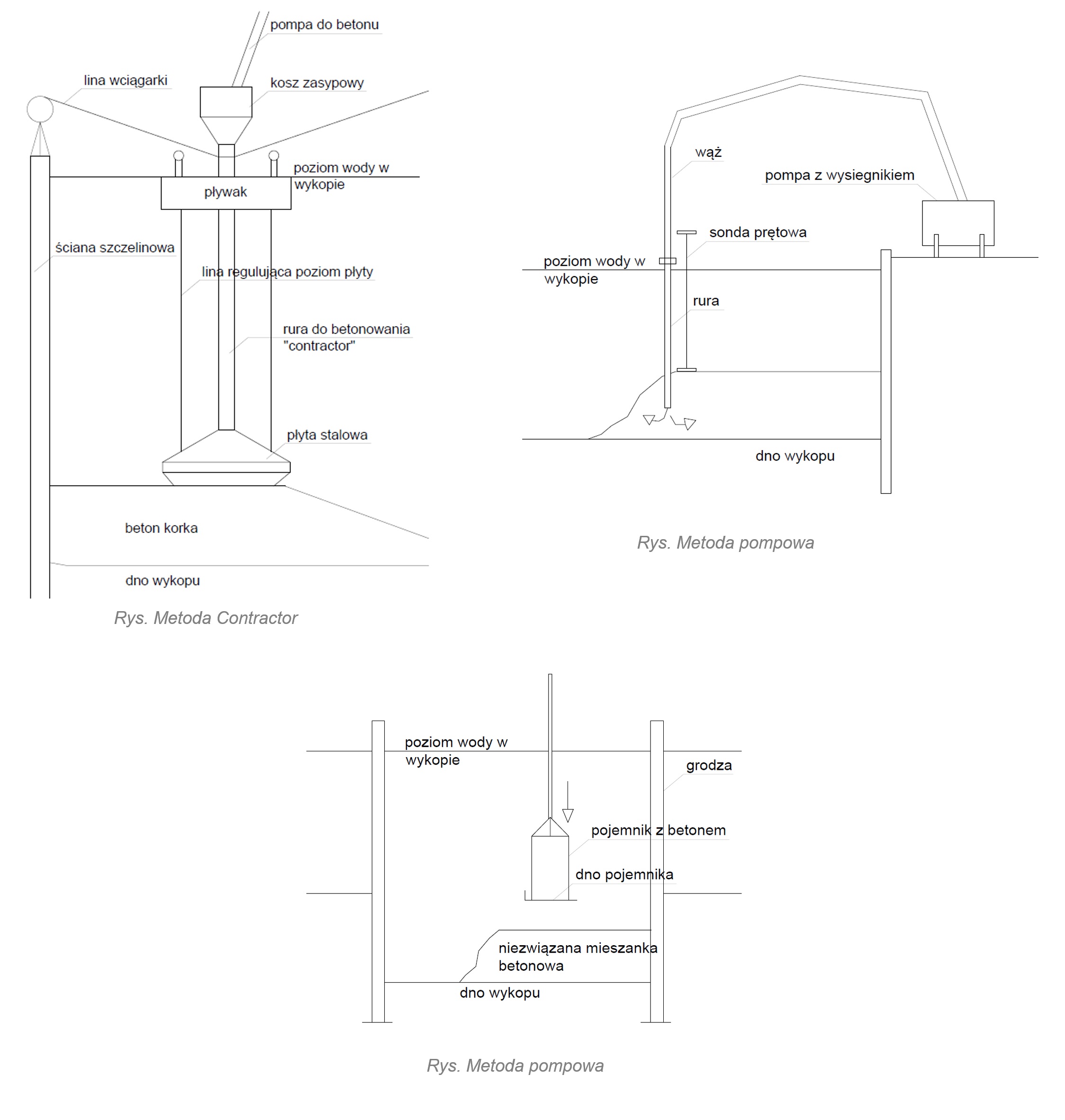
Beton podwodny jest gotową mieszanką usypywaną pod wodą. Taki beton zawiera odpowiednie domieszki, które zabezpieczają spoiwa przed wymywaniem. Natomiast beton zalewowy jest usypywany pod wodą.

Metody betonowania pod wodą
Metoda Contractor
Metoda Contractor jest metodą grawitacyjną. Rura o średnicy 20-30 cm zamykana jest gumową kulą nazywaną też korkiem, która oddziela mieszankę betonową od wody. Po napełnieniu rury betonem korek jest obniżany do momentu wysunięcia się z rury. A następnie wypływa na powierzchnię. Z rury zaczyna wypływać mieszanka betonowa, z której formuje się bryła otaczająca bryłę. Końcówka rury musi być zagłębiona minimum 1 m w betonie, aby zapobiec rozmyciu i segregacji.
Metoda hydrozaworów
Przy leju zakładany jest wąż spadowy zakończony stalowym cylindrem o regulowanej wysokości. W tej metodzie beton dostarcza się porcjami aby nie uszkodzić rury. Możliwość tworzenia warstw do około 20 cm dzięki zakończeniu cylindra stalowego na powierzchni wylewanego betonu.
Metoda pompowa
Sztywną rurą spadową pompuje się beton. Podobnie jak w metodzie Contractor rura jest zanurzona w usypanym betonie. Dzięki temu minimalizowane jest wypłukiwanie i segregacja betonu.
Metoda kubełkowa
Kubełek napełniany jest betonem nad powierzchnią wody i transportowany jest na dno, a następnie opróżniany. Do betonu dodawane są stabilizatory w celu polepszenia spójności. Ta metoda nie ma właściwie ograniczeń dotyczących głębokości betonowania.
Metoda Hydrocreate
Do betonu dodawane są odpowiednie domieszki, które wspomagają w nim odporność na erozję. Taki beton jest swobodnie opuszczany na dno wykopu. W przypadku tej metody maksymalna głębokość na jaką można wylać beton wynosi 4m. Beton po wylaniu sam się wyrównuje.
Metoda CONTRACTOR - jest to metoda grawitacyjna podawania mieszanki betonowej pod wodę przez rurę. Podstawowa zasada to podawanie mieszanki tak aby nie nastąpiło przerwanie ciągłości jej wypływania z rury i wymieszania z zawiesiną.
Rurę spadową o średnicy 20-30 cm najpierw zamyka się kulką gumową, aby beton przy rozpoczynaniu betonowania nie stykał się w rurze z wodą. Gdy lej już dostatecznie napełni się betonem, kulę usuwa się i lekko podnosi rurę spadową. Przez to beton wychodzi z rury i tworzy się rodzaj babki betonowej. Aby zapobiec wypłukaniu lub rozsegregowaniu, dolny koniec rury musi tkwić co najmniej na 1 m w wyłożonym betonie. Stąd nasuwa się wniosek, że metoda ta nadaje się do betonowania grubych części konstrukcji.

Gwoździowanie jest ekonomiczną technologią, która poprawia stateczność zboczy poprzez podwyższenie brakującej kohezji oraz wytrzymałości na rozciąganie i ścinanie gruntów.
Poprawę tych parametrów uzyskuje się poprzez uzbrojenie gruntu prętami (gwoździami), wytwarza się blok z tworzywa zespolonego - gruntu i elementów zbrojenia, który przy zastosowaniu odpowiedniej ilości gwoździ na 1 m2 skarpy zachowuje się jak konstrukcja masywna.

Gwoździowanie znajduje zastosowanie w:
Metoda ta służy do formowania in situ ścian oporowych umożliwiających zastąpienie łagodnych skarp lub zboczy stromą lub pionową ścianą. Do wykonywania gwoździ gruntowych stosuję się elementy identyczne jak dla mikropali (np. TITAN, GONAR, SAS). Ściany z gruntu gwoździowanego wymagają zabezpieczenia powłoką pokrywającą powierzchnię gruntu, spełniającą funkcję stabilizacyjną, estetyczną oraz ochronę przed zjawiskami erozyjnymi.
Stosuje się powłoki wiotkie (z siatki metalowej, geosyntetyków, mat komórkowych), podatne (z siatki lub rusztu stalowego), sztywne - żelbetowe (beton natryskowy, prefabrykaty) grubość powłoki betonowej wynosi od 10 cm dla ścian tymczasowych do 20 cm dla trwałych. Głowicę gwoździa łączy się z osłoną ściany za pomocą nakrętki śrubowej i płyty głowicowej.
Zalety gwoździowania:
Zawiesina bentonitowa składa się z bentonitu oraz wody. Bentonit jest typowym materiałem o cechach tiksotropowych. Bentonit jako materiał mineralny czysty ekologicznie składa się z kwarcu, miki, pirytu, wapna i innych. Świeżo przygotowana zawiesina bentonitowa w czasie intensywnego mieszania ukazuje swoje podstawowe właściwości. Następuje silne pęcznienie mieszanki i akumulacja wody w krystalicznej strukturze minerałów bentonitu. Proces hydratacji ulega redukcji przy zwiększonej szybkości mieszania oraz w wyższych temperaturach otoczenia.
Zawiesina utrzymuje cząsteczki gruntu do pewnej wielkości frakcji w swoim pierwotnym miejscu i nie dopuszcza do obsuwania się gruntu do środka wydrążonej szczeliny. Pożądana jest odpowiednio wysoka gęstość zawiesiny. Zawiesina bentonitowa penetruje w grunty spoiste oraz drobnoziarniste. W kontakcie pomiędzy gruntem a zawiesiną bentonitową woda jest odfiltrowywana i masa powstała na styku utrzymuje powierzchnię szczeliny. W gruntach żwirowych oraz niespoistych gruboziarnistych zawiesina penetruje w strukturę gruntu do pewnej głębokości. Nie powstaje masa filtracyjna i efekt stabilizacji uzyskiwany jest dzięki siłom tarcia oraz lepkości zawiesiny.
Zawiesina bentonitowa jest tiksotropowa, tzn. wytrzymałość na ścianie oraz jej lepkość zanikają, gdy poddana jest drganiom lub jest przemieszczana. Pozostawiona w bezruchu uzyskuje ponownie swoje właściwości fizyczne. Dobór mieszaniny wodno-bentonitowej jest uzależniony od warunków geotechnicznych panujących w podłożu gruntowym.
Stosowanie:
Zawiesina bentonitowa stosowana jest w ścianach szczelinowych. Takie ściany są stosowane w budynkach z głębokimi podziemiami, w tunelach oraz przy wykonywaniu fundamentów budowli w pobliżu istniejących obiektów (minimalna odległość wynosi 30 cm).
Technologia wykonywania ścian szczelinowych polega na wypełnieniu betonem bardzo wąskiego wykopu, w którym znajduje się zbrojenie. W trakcie pogłębiania wykopu znajduje się tam zawiesina bentonitowa, która zapobiega osypywaniu się gruntu. Następnie odbywa się betonowanie sekcji metodą contractor przez leje rurowe na dno szczeliny wypełnionej zawiesiną.
Parcie gruntu - poziome siły jakie wywiera grunt na przykład na mury oporowe lub podobne obiekty.
- parcie czynne (aktywne) Ea - jest to siła działająca od strony gruntu, spowodowana przemieszczeniem konstrukcji lub jej elementu w kierunku od gruntu o wartości dostatecznej do uzyskania najmniejszej wartości parcia gruntu (parcie graniczne). Parcie czynne występuje w przypadku :
- parcie bierne (odpór gruntu)- Ep - jest to proces parcia podłoża gruntowego spowodowany przez przemieszczanie się konstrukcji w stronę gruntu o sile wystarczającej do osiągnięcia przez podłoże oporu granicznego (wartości największej). Taka reakcja może występować w konstrukcji:
